![]() |
Отдел земельных отношений
Судогодский район |
- Вернуться назад
- Извещения о предоставлении земельных участков
- Аукцион на право заключения договоров аренды земельных участков
- Аукцион по продаже земельных участков
- Электронные аукционы
- Перечь земельных участков для предоставления в соответствии с № 5-ФЗ от 12.01.1995 г "О ветеранах"
- Муниципальные торги
- Нормативно-правовые акты
- О необходимости проведения межевания земельного участка
- Перечень сформированных земельных участков для многодетных семей
- Перечень свободных сформированных земельных участков на территории МО "Судогодский район"
- Публичные сервитуты
- Извещения о возможном установлении публичных сервитутов
- Меры социальной поддержки участников СВО и членов их семей
- Госуслуги
- Схема элементов планировочной структуры
Временно исполняющий
полномочия главы
Судогодского
муниципального округа
Владимирской области,
Глава Администрации
муниципального образования
"Судогодский район"
Колгашкин Андрей Валерьевич
полномочия главы
Судогодского
муниципального округа
Владимирской области,
Глава Администрации
муниципального образования
"Судогодский район"
Колгашкин Андрей Валерьевич
Извещение д. Поддол 17.10.25
17-10-2025, 14:47 | 95 | Извещение о предоставлении земельных участков
Печать
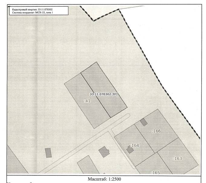
Комитет по управлению муниципальным имуществом и землеустройству администрации муниципального образования «Судогодский район», руководствуясь ст. 39.18 Земельного Кодекса РФ, сообщает о возможности предоставления в аренду земельного участка для ведения личного подсобного хозяйства:
- Чижиковой Г.А., площадью 1466 кв. м, адрес: Владимирская область, Судогодский район, МО Лавровское сельское поселение, д. Поддол.
Граждане, заинтересованные в предоставлении вышеуказанного земельного участка, в течение 30 (тридцати) дней со дня опубликования настоящего извещения могут подавать заявления о намерении участвовать в аукционе на право заключения договора аренды земельного участка.
Заявления подаются письменно, лично (или через представителя по доверенности), в форме электронных документов с использованием Платформы обратной связи Единого портала «Госуслуги», либо почтовым отправлением.
Заявления принимаются по адресу: Владимирская область, Судогодский район, г. Судогда, ул. Коммунистическая, зд. 1б, каб. 307 в понедельник, вторник, четверг с 08.00 до 17.00 часов (перерыв с 12.00 до 13.00 часов). Среда, пятница — не приемные дни.
Ознакомиться с материалами расположения земельного участка так же можно на сайте администрации муниципального образования «Судогодский район» https://admsud.ru в разделе «Извещения о предоставлении земельных участков».
Контактный телефон (49235) 2-16-86.
Прием заявлений о намерении участвовать в аукционе заканчивается по истечении тридцати дней со дня опубликования настоящего извещения.
Заявление о намерении участвовать в аукционе
д. Поддол

Приложение к статье |




























